新潟店ショールーム
新潟市中央区 マンション全改装 後編 工事費用
”黄色いチラシ”のニッカホーム新潟営業所です。

前回ご紹介したマンション全改装の後編となります。
内装工事までご紹介しましたので、続きをどうぞ!
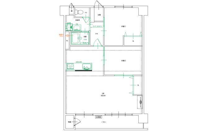
改装イメージ

内装仕上げ







内装仕上げが完了しましたら、
最後はキッチン設置と建具取付となります!
完成をご覧ください。
before


after










白を基調とした内装で施工前と比較するとガラッと印象が変わりましたね!
施主様からもご満足の御言葉をいただきました。
励みになります。ありがとうございます!
キッチンはLDKの対面式にして、広々とした空間となりました。
脱衣場と廊下は施主様のご希望でアコーディオンドアにしており、こちらも広々とした印象となりました!
床は大理石調の柄となり、高級感があります。
水廻りも機能的な機器になり、快適な生活ができそうですね!
この度はありがとうございました。
今回の工事費用は、
税込¥5,940,000-
となります。
https://page.line.me/049awljh?openQrModal=true
↑LINEから簡単御見積りも承っております。
お気軽にご相談下さいませ。
ニッカホームでは、様々なリフォームやお悩みに対して工事する事ができます!
リフォームをお考えの際は
ニッカホーム新潟営業所に!







