新潟店ショールーム
長野市 減築も兼ねた水回り工事 費用
長野にお住いの皆様、こんにちは!
ニッカホーム長野営業所です。
今回はキッチンスペースの減築も兼ねた水回り工事を
させていただいたご自宅の紹介です。
【ご要望】
●キッチンを綺麗にしたい
●浴室を変えたい
●サッシを変えたい
とご依頼いただきました。
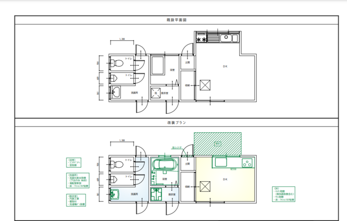
改装プラン/設備機器資料⇩





工事前⇩



工事後⇩



工事途中でイレギュラーな事もありましたが、
長野の職人さんの協力でしっかりと完成できました。
【今回の工事】
●工事期間:2週間
●工事費用:250万円(税込)
今回は以上です。
ご相談はニッカホーム長野営業所に!!
対応エリア
長野市・中野市・千曲市・須坂市・上高井郡
------------------------------------
ニッカホーム中部株式会社 長野営業所
〒380-0935
長野市中御所5丁目2-10
☎0120-78-7549
【LINE】
【Instagram】
------------------------------------






