新潟店ショールーム
長野市 耐震も兼ねたリフォーム工事 費用
長野にお住いの皆様、こんにちは!
ニッカホーム長野営業所です。
今回は耐震も兼ねた和室から洋室への改装工事を
させていただいたご自宅の紹介です。
【ご要望】
●和室から洋室(寝室)にしたい
●トイレを新設したい
●収納場所も欲しい
●無料耐震診断をして不安なので、
全体的な耐震補強も考え工事したい
とご依頼いただきました。
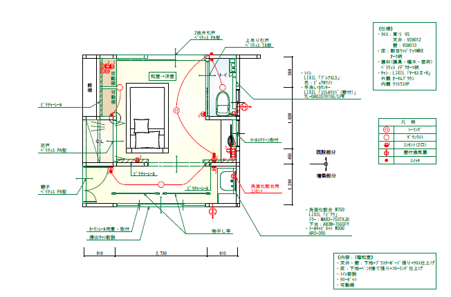
今回は資料/写真で工事の流れをお伝えできればと思います。
改装プラン/補強計画/設備機器資料⇩









工事前⇩




工事中⇩













































































工事後⇩









完成です。
【今回の工事】
●工事期間:約1.5か月
●工事費用:300万円(税込)
今回は以上です!
ご相談はニッカホーム長野営業所に!!
対応エリア
長野市・中野市・千曲市・須坂市・上高井郡
------------------------------------
ニッカホーム中部株式会社 長野営業所
〒380-0935
長野市中御所5丁目2-10
☎0120-78-7549
【LINE】
【Instagram】
------------------------------------






