新潟店ショールーム
水廻り・LDK改装工事・新潟市・費用
”黄色いチラシ”のニッカホーム新潟営業所です。

今回は、水廻り(ユニットバス、洗面台、システムキッチン)の工事と、キッチンと合わせてLDKの改装工事もしました。
工事前写真がお客様NGのため今回はなしです。
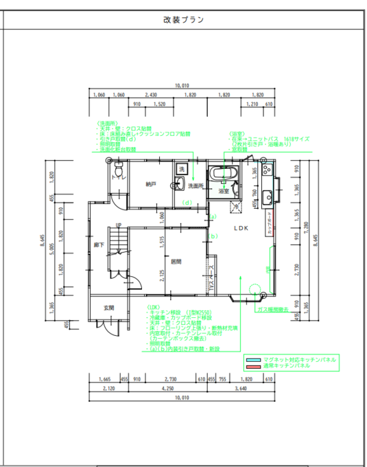
【既設改装平面】


【電気配線図】

【工事中】
お風呂・洗面所からリフォーム開始です。

断熱材も年数立つと劣化します。
壁の中のものなので、リフォームの際には取替した方が良いですね。
洗面所の床も解体しました。
断熱材入れたいこともありますが、床に高さを上げることが一番の目的です。

後、TOTOユニットバスのオプション 【ノコリ~湯ECO】の配管のためでもあります。
ノコリ~湯ECO 20230703110614.pdf

写真手前に来ている白い配管が、ノコリー湯エコのための配管です。洗濯機と浴槽がつながり、浴槽残り湯を洗面所からホースを伸ばさずに
利用できます。

洗濯用の2ハンドル水栓の横、洗面化粧台側についているのが、ノコリー湯ECOです。
浴室の断熱材も入れ替えていきます。


浴室窓の断熱性能の良いサッシに入れ替えです。

サイズも小さくしていきます。



窓の入れ替えのみの場合、どうしても外壁は継ぎはぎになってしまいます。
近い柄、色のものを手配して、できる限り合うように収めていきます。

今回洗面所の床の高さは、廊下から12㎜上がりでの仕上がりになります。
今回は、LDKのみで廊下はフローリング張りませんが、計画として廊下のフローリング張りも考えているとのことでしたので、
今回リフォームする洗面所の床も、フローリング分上げています。

写真がなかったですが、洗面所入口の引戸は上がった床に合わせて新調してます。






洗面化粧台は、【クリナップ S】 ステンレス製の洗面化粧台です。
体重計収納もついています。
【LDK改装工事】
キッチン解体後、電気工事~大工工事

食洗機、浴室暖房などブレーカーを増やして専用配線工事をします。

LDKは床をめくりませんが、断熱材を入れたとのことです。
床下点検口や、フローリング上張りをするため、既存床の一部に開口開けて潜りながら断熱材入れていきます。
今回使用するのは、根太の間に入れるものではなく、根太を支えている大引と呼ばれる木材の間に入れる断熱材を使用しています。





LDK床はフローリング上張りしていきます。


廊下から上がってしまいますが、後に廊下も上張りするとのことです。
建具も新調していきます。
フローリングは建具から廊下側へ見えるところまで、張り伸ばしています。
廊下を上張り想定の納まりで、三角見切りを外して、後に行う廊下のフローリングが平らになる想定です。



LDKの掃き出し窓には、埋め込みのカーテンボックスがついていました。使ってないとのことですので、
天井を造って塞いでいきます。

キレイになくなりました。

キッチンは、【クリナップ ラクエラ】



レンジフードは、【洗エールレンジフード】です。
汚れてきたらお知らせしてくれて、掃除の仕方は、お湯トレイに40度くらいのお湯を入れてボタンを押すだけで掃除完了です。

~洗エ―ルレンジフード紹介動画~

今回の工事費用は、
税込4,660,000-
となります。
リフォームをお考えの方は、
是非ニッカホーム新潟営業所に
ご相談下さい。
ニッカホーム新潟ショールーム
〒950-0948 新潟市中央区女池南1丁目1-13
対応エリア:新潟市、新発田市、阿賀野市、五泉市、三条市、加茂市、燕市、聖籠市、田上町、弥彦村
~その他工事紹介~
ユニットバス入替・ニッカ流断熱・新潟市・費用|ニッカホーム新潟店ショールームのスタッフブログ (niigata-nikka.com)
LDK改装工事・リシェルSI・新潟市・費用|ニッカホーム新潟店ショールームのスタッフブログ (niigata-nikka.com)
キッチン工事・LIXILリシェルSI・新潟市費用|ニッカホーム新潟店ショールームのスタッフブログ (niigata-nikka.com)
1F増築+スケルトンリフォーム・新潟市・費用|ニッカホーム新潟店ショールームのスタッフブログ (niigata-nikka.com)






